RESIDENTIAL DESIGN

BHAGWAT HOME


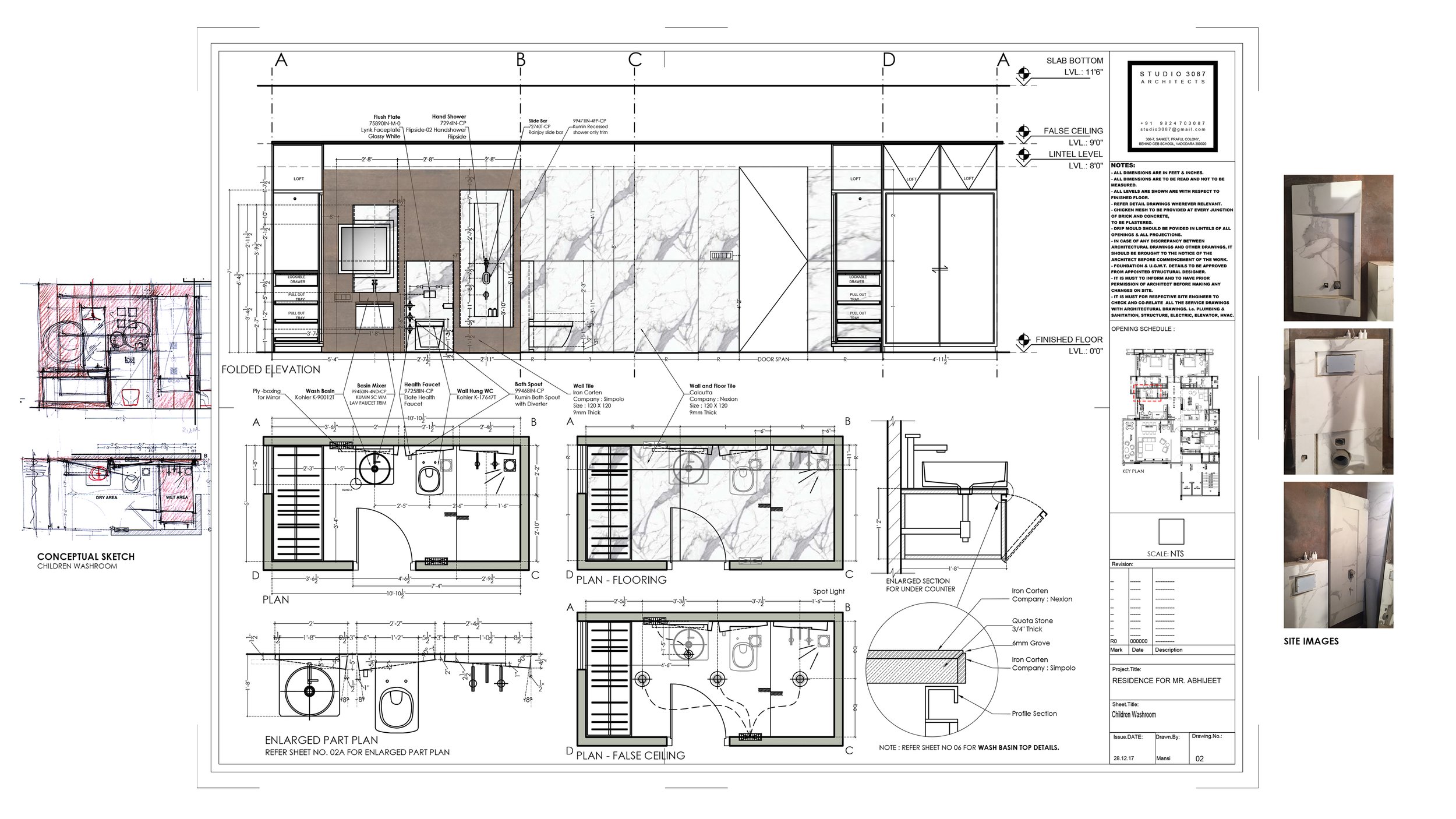
Interior Designer Studio 3O87, India

Responsibility Overview Concept Development + Space programming + Design Development + Permit Documentation + Construction Documentation + Working Drawing + Design Specification Booklet + Project Presentation & Documentation

City Vadodara, GJ

Year 2019

Size 2500 SF


I practiced multidisciplinary interior design with the architectural firm Studio 3O87 in India. Collaborating with the team, we experimented with contemporary tools and techniques to design multi-faceted built environments across residential, office, retail, hospitality, and institutional settings. Our initial project programming primarily focused on spatial organization, light, and movement. At a conceptual level, my practice transformed two-dimensional forms into three-dimensional realities, challenging perceptions of space and exploring the sculptural stability of physical elements. These environments became vehicles for telling the stories of those who inhabit them.

In the Bhagwat Home project, we took this exploration to another level by employing systems of triangulation, creating a design that was both aesthetic and functional. The triangulation extended beyond the physical environment and structural rigidity, ultimately manifesting as an endless field of physical and visual engagement. The generative design utilized various triangular sizes to form a shell-patterned skin that thematically unified the spaces and accentuated the sculptural qualities of the design.

This concept developed into a graphic spanning across the passage area, enhancing the perception of elongated eye movement that leads into different spaces. The masses acted as beam covers, providing a sense of multiplicity. The entire design focused on transforming the walls of the transitional spaces into a dynamic shell with more form and shape, making the space more meaningful. The triangulation concept was applied not by treating the walls, floors, and ceiling separately, but by considering the entire space as a cohesive whole.

Next
Next

project 320