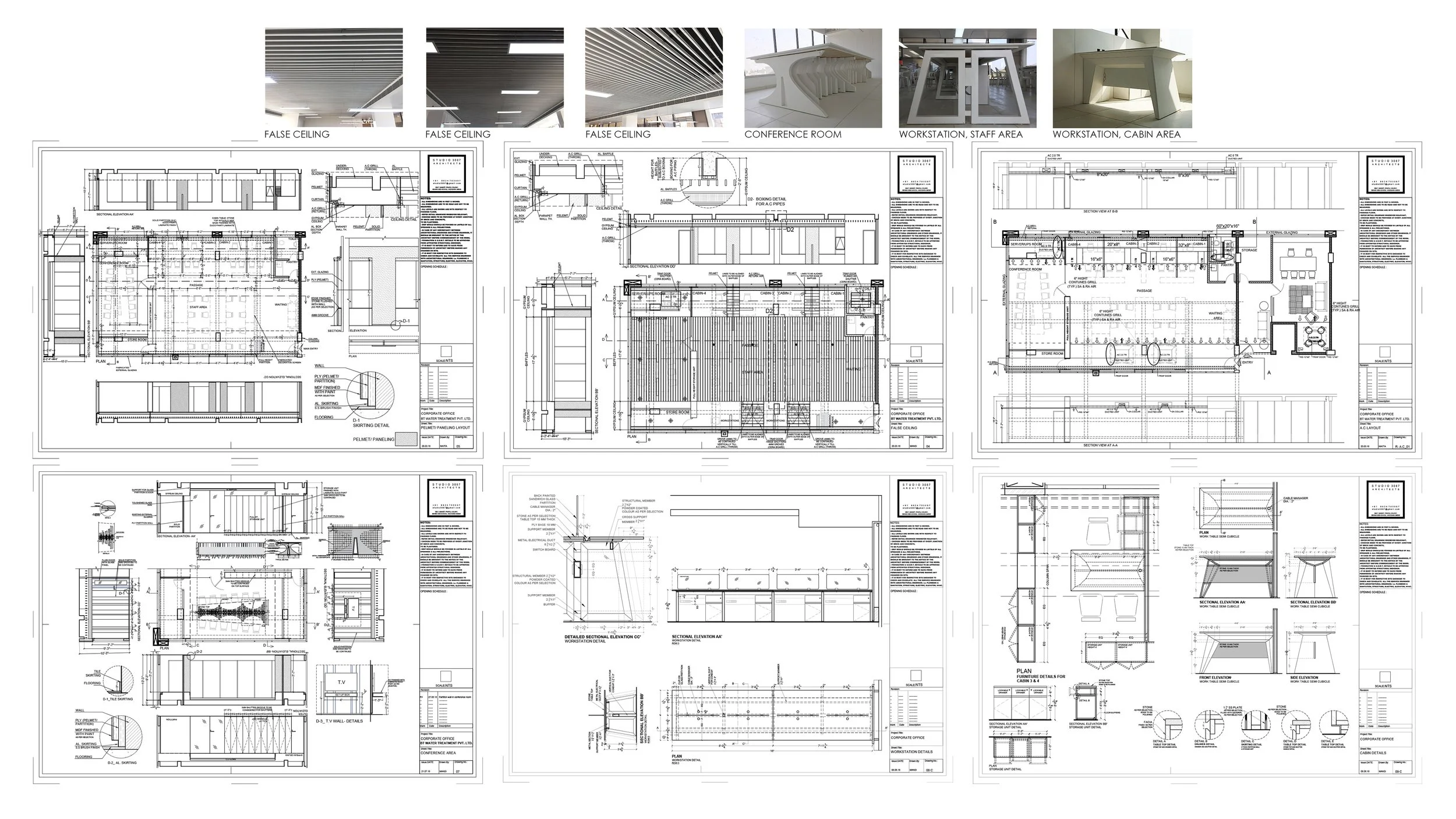
CORPORATE DESIGN

B. T. WATER TREATMENT

Reception Area + Working Area + Conference & Meeting Spaces + Utilities + Environmental Interior Graphics


Interior Designer Studio 3087

Responsibility Overview Concept & Design Development + Permit Documentation + Construction Documentation + Working Drawing + Design Specification Booklet + Project Presentation & Documentation

City Vadodara, GJ, India

Year 2018

Size 5500 SF


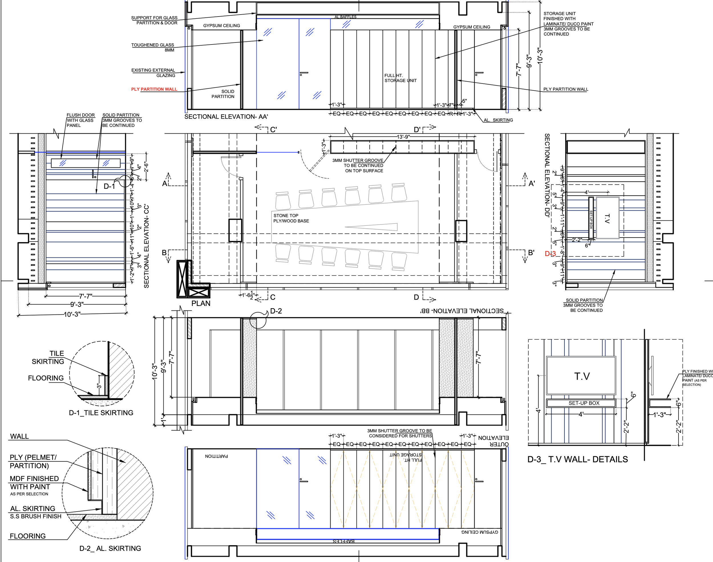
A two-phase corporate design project, B. T. Water Treatment, was executed with meticulous attention to detail. Every element, from the false ceiling to the worktable, the glass partitions to the conference table, was crafted with precision and a formal approach. The consistent use of white throughout the space maintains a sense of unity and coherence in the overall design.

Below, you will find construction documents for the project, including drawings and details that I take great pride in.

Previous
Previous

pcbl

Next
Next

vitra